Resort-Like Living at Encanto

1338, Las Casitas Court, North San Jose, San Jose, CA, 95126

Key Details

Status
Sold
Type
Single family home
Sold Price
$1,515,000

Overview

A PRIVATE REFUGE NEAR ALL THE ACTION
RESORT-LIKE LIVING | EXCEPTIONAL CRAFTMANSHIP

Prepare to be enchanted by this Mediterranean daydream in the prized Encanto community. Crafted by Robson Homes, the home displays signature touches like designer upgrades, mahogany floors, custom storage, and abundant character—including a charming outdoor kitchen. Steps from the pristine pool, it truly feels like having a backyard resort, complete with a stunning clubhouse for parties, meetings, and more.

The beautifully remodeled farmhouse-style kitchen features concrete countertops, an apron-front sink, subway tile and newer stainless appliances. A sunlit dining room showcases a floor-to-ceiling built-in buffet—perfect for hosting and entertaining. French doors open to a private patio with a modern outdoor kitchen for seamless indoor/outdoor living. Upstairs, the spacious primary suite offers a spa-like bath and walk-in closet, plus two additional bedrooms with shiplap accents and a second full bath. A built-in loft provides ideal work-from-home flexibility. Solar power adds energy efficiency, and the two-car attached garage offers plenty of additional storage.

Freshly painted and move-in ready, this exceptional bungalow home is moments from Santa Clara University, boutiques and dining along The Alameda, Santana Row, PayPal Park and major Silicon Valley employers. A gorgeous community to come home to!

 

Virtual Tour

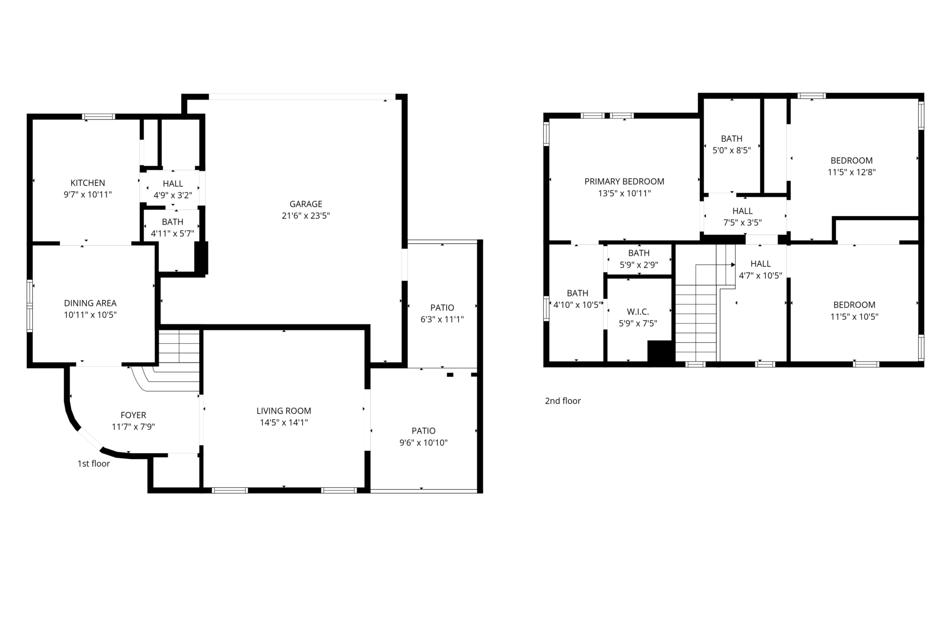
Floor Plans

Explore the Area

Transportation
Restaurants
Shopping
Cafes & Bars
Arts & Entertainment
Fitness

Similar Properties